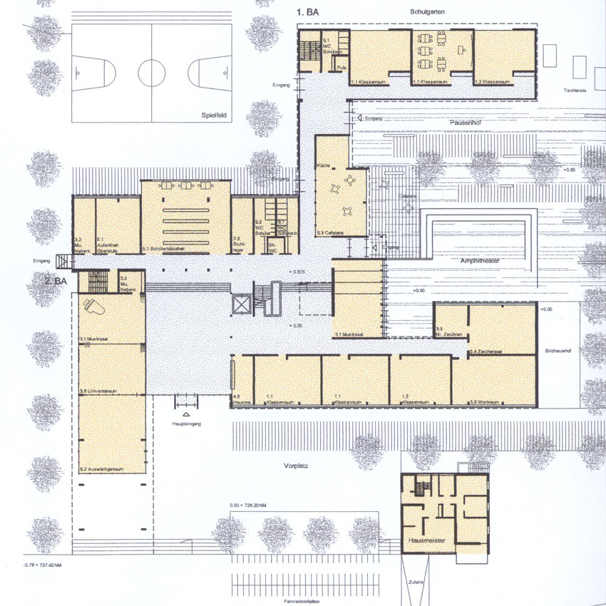
Erweiterung Gymnasium

REALISIERUNGSWETTBEWERB
Erweiterung Gymnasium

  • Standort: Münsingen
  • Zeitraum: März 2002
  • Platzierung: Engere Wahl
  • Architekt: Manfred Raus, Karlsruhe
  • Mitarbeiter: Gabriele Pfründer
                          Peter Ohnrich
Lageplan
Grundriss
Nach oben scrollen