Denkmalgeschützes Wohngebäude

DENKMALGESCHÜTZTES WOHNGEBÄUDE

  • Standort: Karlsruhe, Weststadt
  • Planung und Ausführung:: 2009 – 2012
  • Bauherr:  Katholischer Darlehensfond,
    vertr. durch erzbischöfliches Ordinariat Freiburg
  • Maßnahmen:
  • Sanierung Fassade und Dach
  • Anbau / Erneuerungen von Balkonen
  • Umbau und Modernisierung der Wohnungen im Dachgeschoss
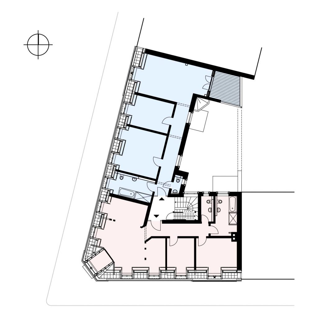
Grundriss 4.Obergeschoss
Detail: Balkon Nelkenstraße
Detail: Gaube
Ansicht Nelkenstraße

Das Wohn- und Geschäftshaus, Baujahr ca. 1900, ist als Denkmal eingetragen und steht zusätzlich unter Ensembleschutz des Gutenbergplatzes.

Die Umbau- und Sanierungsmaßnahmen bezogen sich auf die Instandstetzung und Verbesserung der Außenhaut (Fassaden- und Dachflächen) und den Umbau mit Modernisierung im Dachbereich.

Veränderungen und Eingriffe sind im Wensentlichen die neuen Balkone und die Terrasse auf der Hofseite, der Anbau von französischen Balkonen an die Eckfassade zum Gutenbergplatz und der Dachgeschossausbau mit den neuen Dachgauben.

Balkone im Innenhof
Nach oben scrollen