Marstall | Opernschule für die staatl. Hochschule für Musik

UMBAU DES MARSTALLS ALS OPERNSCHULE
FÜR DIE STAATL. HOCHSCHULE FÜR MUSIK

  • Standort: Karlsruhe
  • Planung und Ausführung: 1996 – 2000
  • Bauherr:  Land Baden-Württemberg
    vertr. durch Staatl. Vermögens- und Hochbauamt KA
  • Auszeichnungen:
  • Hugo-Häring-Preis 2002
  • Beispielhaftes Bauen der Stadt Karlsruhe 1995-2005 der Stadt Karlsruhe

     

  • Maßnahmen:
  • Sanierung / Umbau des Gebäudes
  • Neuorganisation des Erdgeschosses
  • Ausbau des Dachgeschosses
Lageplan 1996
Großer Saal im EG

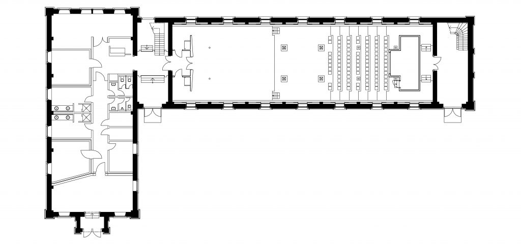
Der Marstall diente dem Schloss Gottesaue im Osten von Karlsruhe als Pferdestall. Mittlerweile befindet sich im Schloss Gottesaue die Staatliche Hochschule für Musik. Der ehemalige Marstall wird von der Opernschule genutzt.

Die Sandsteinfassade des südlichen Flügels umhüllt den großen Saal mit aufwändigem Kreuzgewölbe und gusseisernen Stützen. Dieser Saal, der noch an seine ursprüngliche Aufgabe erinnert, ist in Größe und Proportion wie geschaffen für die Anforderung der Musiker.

Um einen stützenfreien Bereich für die Bühne zu schaffen, wurden zwei der alten, gusseisernen Stützen entfernt und durch eine Unterspann-Konstruktion ersetzt, die über Stahlträger an der darüberliegenden Decke verankert ist.

Längsschnitt
Ansicht von Osten
Grundriss Erdgeschoß
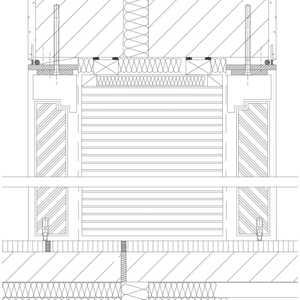
Detail: Lichtband EG
Ansicht von Nordwesten
DG vor der Sanierung
DG: Fechtsaal nach Sanierung

Unter Berücksichtigung der alten Struktur und neuen Nutzung wurde das Gebäude zielgerecht saniert und bietet die Möglichkeit, die einzelnen Räume akustisch zu trennen.

Das Schallklima vor allem im Hauptsaal und den beiden Haupträumen im alten Dachstuhl (alter Fechtsaal und Balettsaal) ist für die Nutzung mit schallschluckenden Oberflächen optimiert.

Durch gezielt eingesetzte Oberflächen wirken die neuen Räume trotz der kleinen Öffnungen tageslichtdurchflutet und hell.

Querschnitt durch den großen Saal
DG: Ballettsaal
Wandverkleidung im großen Saal
Detailschnitt: Wandverkleidung
Doppeltüren im OG (Leibungsansicht)
Detailansicht: Doppeltüren im OG
Eingestelltes Treppen aus aus Stahl
Nach oben scrollen