KIT-Campus Nord | Ersatzbau 682

Ansicht von Süden
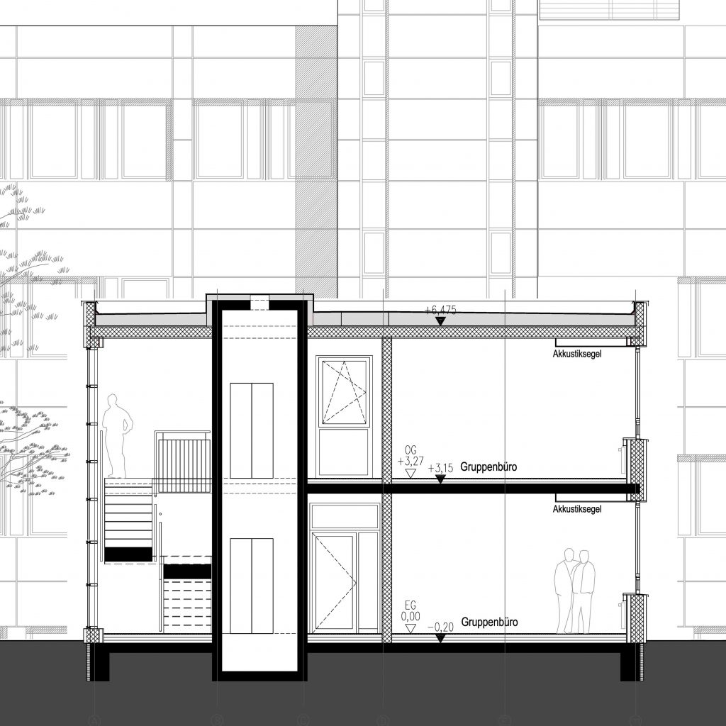
Schnitt

KARLSRUHER INSTITUT FÜR TECHNOLOGIE (KIT),
CAMPUS NORD | ERSATZBAU 682

  • Standort: Eggenstein-Leopoldshafen
  • Fertigstellung: 2015
  • Bauherr:  KIT, Campus Nord
  • Maßnahmen:
  • Abbruch und Neubau eines Institutsgebäudes
Grundriss Erdgeschoss

Der Neubau ersetzt den ehemaligen Bau 682 an nahezu der gleichen Stelle im Innenhof. Es handelt sich um ein zweigeschossiges Bürogebäude mit einer überdachten Anbindung an das Nachbargebäude 681.

Die Büroräume sind vorwiegend nach Norden ausgerichtet, Nebenräume nach Süden.
Variable Raumgrößen innerhalb eines Konstruktions-rasters von 1,30m.

Im Süden schließt sich der gemeinsame Innenhof der Gebäude 682, 681, 695 und 696 an. Erweiterungsmöglichkeiten nach Osten (im Konstruktionsraster als zweibündige Anlage). Die Fassadenbekleidung aus hinterlüfteten Aluzackenblechen nimmt die Optik der umgebenden Gebäude auf.

Nach oben scrollen