Bürogebäude

Haupteingang von der Kriegsstraße

BÜROGEBÄUDE (HOCHHAUS)
KARLSRUHE KRIEGSSTRASSE
 

  • Standort: Karlsruhe, Kriegsstraße
  • Fertigstellung: 2002
  • Bauherr:  Allianz Lebensversicherungs AG
    vertr. durch Allianz Immobilien GmbH
  • Maßnahmen:
  • Umfassende Sanierungs- und Instandsetzungsarbeiten im gesamten Gebäude bei laufendem Betrieb
  • Neugestaltung verschiedener Bereiche, des Eingangsbereichs und der Außenanlagen
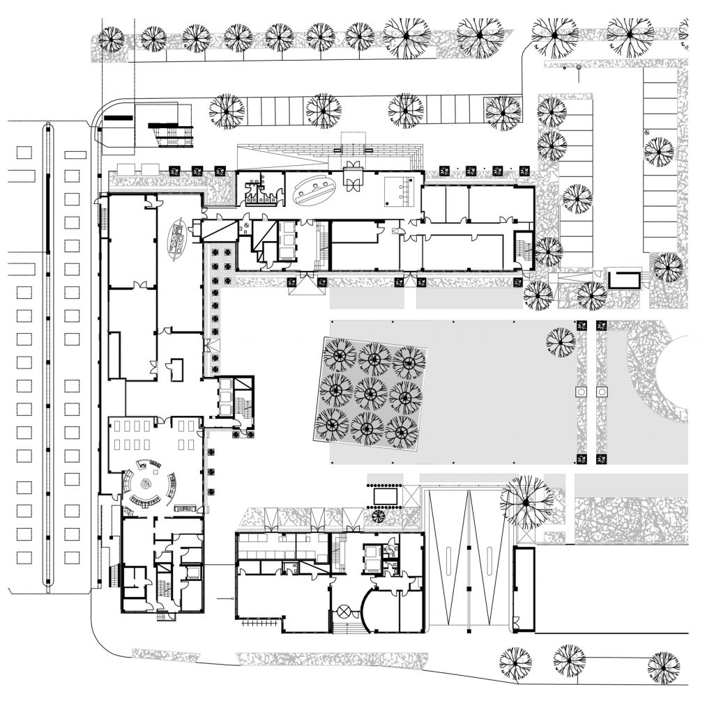
Lageplan
Innenhof
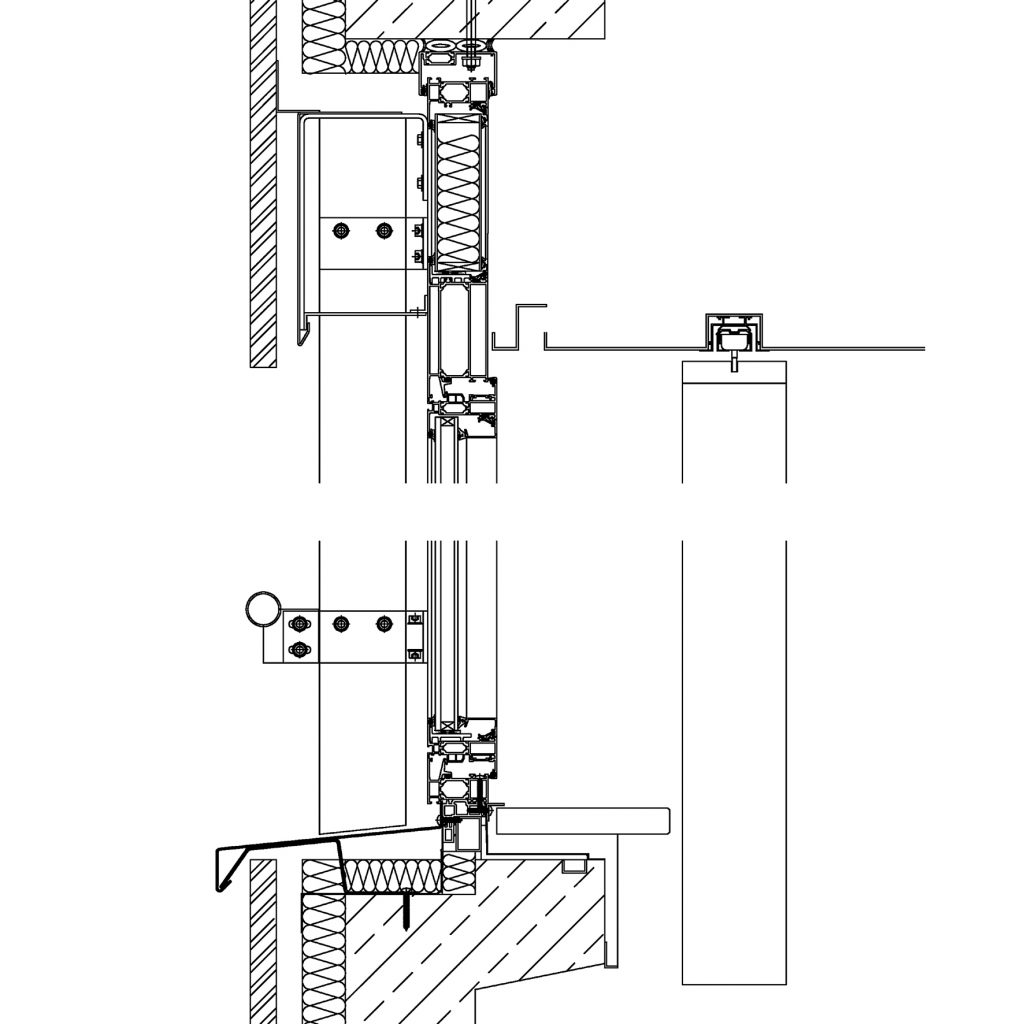
Detailschnitt Fenster Obergeschoss
Fassadenausschnitt Fenster Obergeschosse


Der Gebäudekomplex mit seiner Entstehungsgeschichte aus den siebziger Jahren befand sich vor dem Umbau nahezu im Originalzustand.

Durch neue gesetzliche bzw. technische Vorschriften, überhöhte Betriebskosten, veraltete technische Anlagen, bauliche Mängel sowie einen veränderten Raumbedarf des Nutzers war Handlungsbedarf angezeigt und eine Sanierung begründet, die nicht zuletzt zu einem neuen zeitgemäßem Erscheinungsbild führte.

So wurden unter anderem alle Fensterelemente in den Obergeschossen ersetzt sowie im Erdgeschoss die Pfosten-Riegel-Fassade und alle Zugangstüren erneuert.

Die Sanierung umfasste:
• Instandsetzungsarbeiten wie z. B. neue Fenster und zeitgemäße Haustechnik.
• neuer Ausbau der Bürobereiche und damit verbundene Maßnahmen zum vorbeugenden Brandschutz
• Verlagerung und Neugestaltung des Verköstigungsbereichs
• Einrichtung eines Schulungsbereichs mit moderner Medientechnik
• Neugestaltung der Eingangsbereiche und der Außenanlagen

Nutzung, Gebäudestruktur und Erschließung blieben im wesentlichen erhalten.
Die Umsetzung bzw. der Bauablauf erfolgte während laufendem Betrieb, abschnitts- bzw. geschossweise.

Kasino
Nach oben scrollen