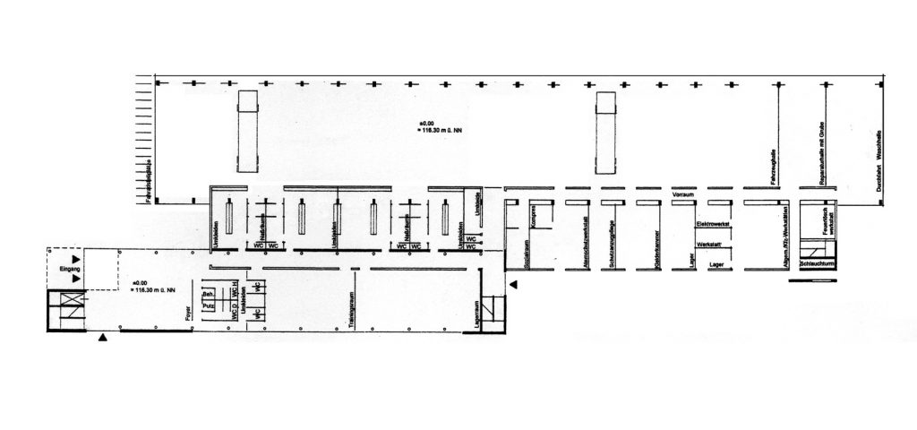
Neubau Feuerwehrhaus REALISIERUNGSWETTBEWERBNeubau Feuerwehrhaus Standort: EttlingenZeitraum: 1998Platzierung: AnkaufArchitekt: Manfred Raus, KarlsruheMitarbeiter: Konrad Höß Gabriele Kemme Kerstin Kohlenbach Susanne Reiss Lageplan Grundriss Ansicht